神奈川県、鎌倉・大船の不動産賃貸・売買物件情報、建築・リフォーム情報まで、おまかせください。
神奈川県知事登録(12)第4196号日新火災海上保険(株)代理店
中古売戸建住宅
2,980万円
湘南モノレール/富士見町駅/徒歩10分
緑豊かで閑静な住宅地
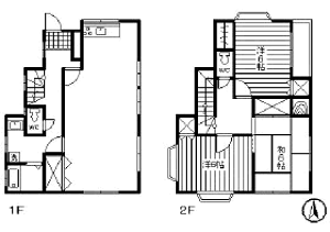
間取り
3LDK
土地面積
公簿143.84㎡
建物面積
87.80㎡
私道面積
土地権利
所有権
建物構造
木造2階建
築年月
1993年7月
間取内訳
和6洋6/6LDK15
★
大船病院近く
★
内装リフォーム済!
所在地
神奈川県鎌倉市山崎2328-2
最寄り駅
湘南モノレール 富士見町駅 徒歩10分
物件概要
借地期間
-
建築確認
地代
-
駐車場
有 無料
定期借地の時
-
現況
空家
都市計画
市街化区域
他一時金
用途地域
1種低層
引渡し日
相談
地勢
傾斜地
接道状況
西2.4m
建蔽/容積
40/80
特記事項
閑静住宅街 セットバック済
設備
上水道 電気 プロパンガス 浄化槽 掘ごたつ
備考
セットバック分含む。敷地東側は傾斜地。庭は鉄骨柱のコンクリートデッキで形成。道路は建築基準法第43条但し書
物件詳細をダウンロード
情報公開日
-
取引態様
専属専任
取扱会社
有限会社 栄商事
〒247-0056 神奈川県鎌倉市大船1丁目9-1 みずほ会館1階
貸物件一覧
|
売物件一覧
|
お部屋探しガイド
|
ご契約の流れマニュアル
|
オーナー様向け情報
|
お問い合せ
copyright(c)
有限会社 栄商事
All Rights Reserved.